Questão Q401946
2011 Fundação CESGRANRIO (CESGRANRIO) Petrobras
Prova: Concurso Petrobras - Técnico de Projetos Júnior Área Edificações - Fundação CESGRANRIO (CESGRANRIO) do ano 2011 Petrobras

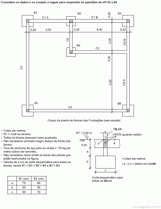
A quantidade total de aço para C4 e C5, em toneladas, val...

A quantidade total de aço para C4 e C5, em toneladas, vale

Comentários

Faça login para participar da discussão.

Cadastre-se Gratuitamente
Carregando comentários...