Questão
Q567884
Prova: Concurso Ministério da Ciência e Tecnologia (MCT) 2008 - Analista em Ciência Pleno 1 I (B13) - Centro de Seleção e de Promoção de Eventos UnB (CESPE) do ano 2008
•
Ministério da Ciência e Tecnologia (MCT) 2008
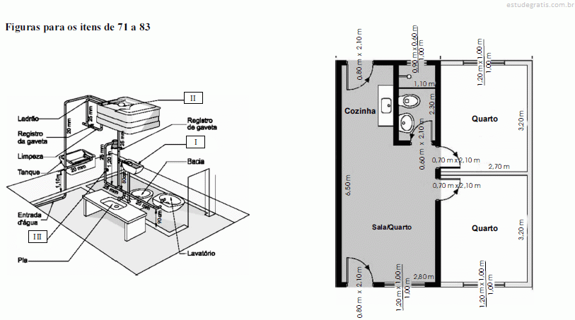
Considerando a figura I acima,os métodos e técnicas de de...

Considerando a figura I acima,os métodos e técnicas de desenho e informática aplicada, e aos tipos de representação, julgue os itens a seguir.
Nos projetos de instalações hidrossanitárias, para quantificar os materiais facilmente, mesmo antes do advento dos programas 3D, sempre foram usadas as representações isométricas.
Comentários
Faça login para participar da discussão.
Cadastre-se Gratuitamente
Carregando comentários...