Questão Q401944
2011 Fundação CESGRANRIO (CESGRANRIO) Petrobras
Prova: Concurso Petrobras - Técnico de Projetos Júnior Área Edificações - Fundação CESGRANRIO (CESGRANRIO) do ano 2011 Petrobras

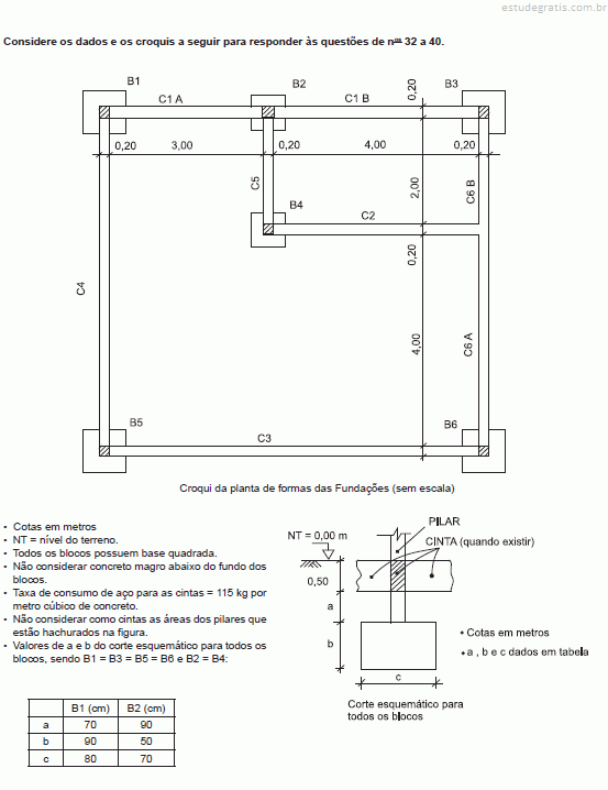
Considerando-se uma perda de 3% para a concretagem da C3,...

Considerando-se uma perda de 3% para a concretagem da C3, o volume de concreto a ser acrescido ao volume geométrico dessa peça estrutural, em litros, será de

Comentários

Faça login para participar da discussão.

Cadastre-se Gratuitamente
Carregando comentários...