Questão
Q393320
Prova: Concurso Ministério da Ciência e Tecnologia (MCT) - Analista em Ciência Pleno 1 I (B13) - Centro de Seleção e de Promoção de Eventos UnB (CESPE) do ano 2008
•
Ministério da Ciência e Tecnologia (MCT)
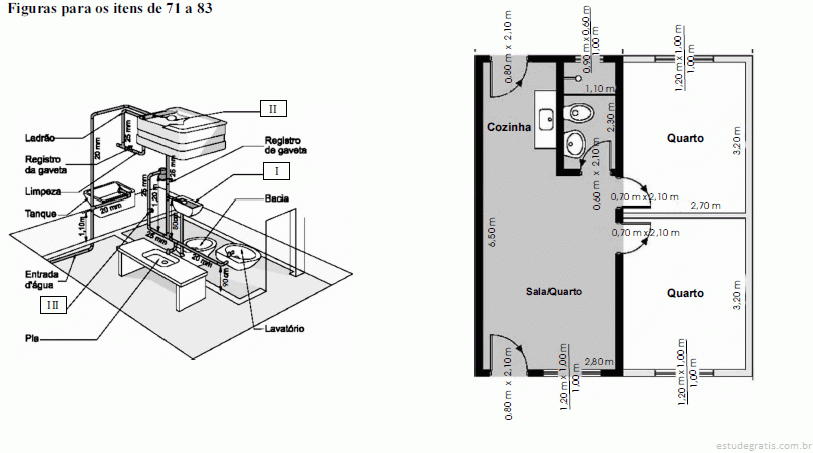
Quanto ao conforto ambiental da residência apresentada na...

Quanto ao conforto ambiental da residência apresentada na figura II, julgue o item a seguir.
Os ambientes seriam termicamente mais confortáveis se as fachadas mais insoladas e estivessem voltadas para uma orientação mais favorável.
Comentários
Faça login para participar da discussão.
Cadastre-se Gratuitamente
Carregando comentários...