Questão
Q393310
Prova: Concurso Ministério da Ciência e Tecnologia (MCT) - Analista em Ciência Pleno 1 I (B13) - Centro de Seleção e de Promoção de Eventos UnB (CESPE) do ano 2008
•
Ministério da Ciência e Tecnologia (MCT)
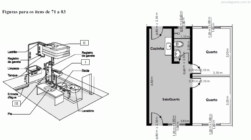
Com relação a figura I, que corresponde à instalação hidr...

Com relação a figura I, que corresponde à instalação hidrossanitária de uma pequena residência, julgue os itens subseqüentes.
O circuito de água, a partir da caixa que alimenta a pia, o chuveiro e a bacia sanitária, contém 3 joelhos de 25 mm e 3 tês.
Comentários
Faça login para participar da discussão.
Cadastre-se Gratuitamente
Carregando comentários...