Questão
Q393304
Prova: Concurso Ministério da Ciência e Tecnologia (MCT) - Analista em Ciência Pleno 1 I (B13) - Centro de Seleção e de Promoção de Eventos UnB (CESPE) do ano 2008
•
Ministério da Ciência e Tecnologia (MCT)
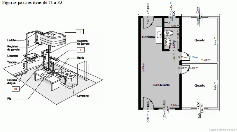
Com relação a figura I, que corresponde à instalação hidr...

Com relação a figura I, que corresponde à instalação hidrossanitária de uma pequena residência, julgue os itens subseqüentes.
O ladrão e o tubo previsto para limpeza da caixa d’água desembocam no mesmo lugar abaixo do nível da água. Para que a caixa possa permanecer cheia deve-se obstruir a saída no fundo da caixa com um tampão.
Comentários
Faça login para participar da discussão.
Cadastre-se Gratuitamente
Carregando comentários...