Questão
Q393302
Prova: Concurso Ministério da Ciência e Tecnologia (MCT) - Analista em Ciência Pleno 1 I (B13) - Centro de Seleção e de Promoção de Eventos UnB (CESPE) do ano 2008
•
Ministério da Ciência e Tecnologia (MCT)
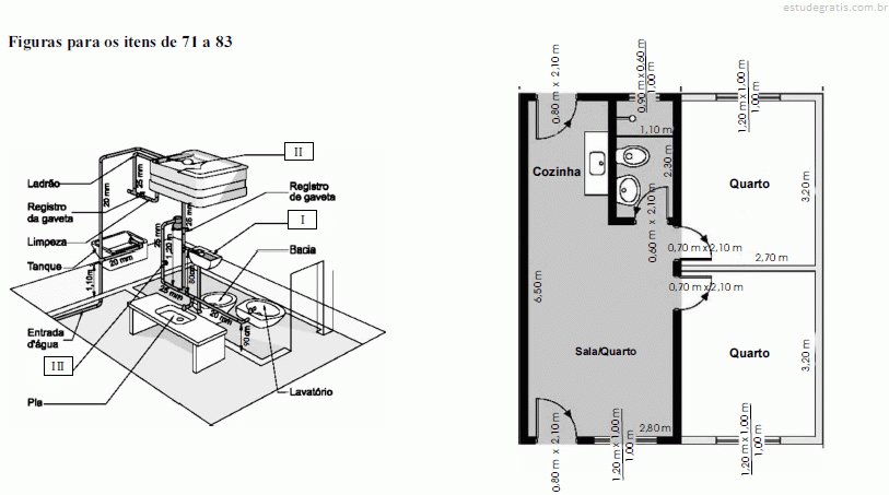
Considerando a figura I acima,os métodos e técnicas de de...

Considerando a figura I acima,os métodos e técnicas de desenho e informática aplicada, e aos tipos de representação, julgue os itens a seguir.
Denomina-se cônica e não isométrica a perspectiva representada acima.
Comentários
Faça login para participar da discussão.
Cadastre-se Gratuitamente
Carregando comentários...