Questão Q387484
2010 Fundação CESGRANRIO (CESGRANRIO) Eletrobrás Termonuclear S.A. (ELETRONUCLEAR)
Prova: Concurso Eletrobrás Termonuclear S.A. (ELETRONUCLEAR) - Técnico em Construção Civil - Fundação CESGRANRIO (CESGRANRIO) do ano 2010 Eletrobrás Termonuclear S.A. (ELETRONUCLEAR)

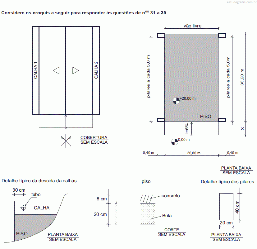
A base do piso será composta por uma camada de brita, co...

A base do piso será composta por uma camada de brita, conforme esquematizado. Em função do processo de compactação, o volume de brita adquirido deverá conter 20% de acréscimo em relação ao volume geométrico. Sabendo- se que a brita custa R$ 80,00/m3, o valor, em reais, para a compra da brita será de

Comentários

Faça login para participar da discussão.

Cadastre-se Gratuitamente
Carregando comentários...