Questão Q387480
2010 Fundação CESGRANRIO (CESGRANRIO) Eletrobrás Termonuclear S.A. (ELETRONUCLEAR)
Prova: Concurso Eletrobrás Termonuclear S.A. (ELETRONUCLEAR) - Técnico em Construção Civil - Fundação CESGRANRIO (CESGRANRIO) do ano 2010 Eletrobrás Termonuclear S.A. (ELETRONUCLEAR)

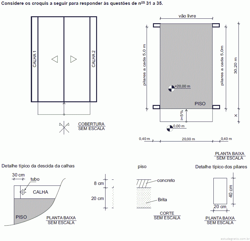
Sabendo que a carga total a ser distribuída igualmente en...

Sabendo que a carga total a ser distribuída igualmente entre os pilares é de 3.360 kN e que o solo nessa região tem tensão admissível de 120 kN/m2, qual a área mínima, em cm2, da base da sapata de um pilar?

Comentários

Faça login para participar da discussão.

Cadastre-se Gratuitamente
Carregando comentários...