Questão Q387478
2010 Fundação CESGRANRIO (CESGRANRIO) Eletrobrás Termonuclear S.A. (ELETRONUCLEAR)
Prova: Concurso Eletrobrás Termonuclear S.A. (ELETRONUCLEAR) - Técnico em Construção Civil - Fundação CESGRANRIO (CESGRANRIO) do ano 2010 Eletrobrás Termonuclear S.A. (ELETRONUCLEAR)

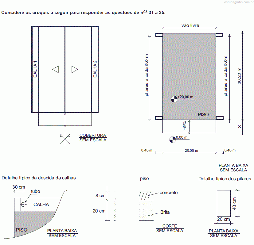
Cada calha, conforme esquematizado no detalhe típico, te...

Cada calha, conforme esquematizado no detalhe típico, tem duas descidas de águas pluviais, uma em cada extremidade, as quais recebem metade da contribuição das águas da calha. Para que o caimento seja de 0,5%, no fundo da calha, qual o desnível mínimo, em centímetros, entre o eixo do tubo de descida e o ponto mais alto?

Comentários

Faça login para participar da discussão.

Cadastre-se Gratuitamente
Carregando comentários...